您的网页浏览器已过期!

更新您的浏览器,以提高安全性和舒适性,并获得访问本网站的最佳体验。

Your web browser is out-of-date!

Update your browser for more security, comfort and the best experience on this site.
更新浏览器 Update browser 忽略 Ignore
projects
| INFINICUT HAIR SALON

Introduction

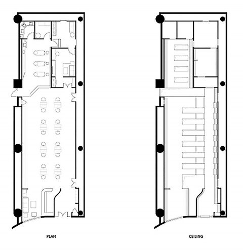
INFINICUT Salon

This salon is located in the north of Kexueyan Road in Haidian District of Beijing inside a business park in an area full of IT companies. The stylists cum owners of the salon are obsessed with Harley Davidson motorcycle culture. They are usually dressed in pure cotton shirts, primary colour jeans and sport exquisite leather accessories. Serious stylists during the day, they love to show off their leather and gallivant around town at night.

The driving concept behind the spatial design of the INFINICUT Hair Salon is the Infinite Curve which is based on the idea of a continuous curve without any endings, it also happens to be the shape of the barbers’ scissor handles . We took this idea and created a space without any sharp edges.

The Infinite curve marks a custom designed entrance which hints at the spatial characteristics of this salon. As soon as a user enters this space, they are teleported into a futuristic space with fluid curves without any edges finished in glossy metallic walls. The main salon area is open planned allowing free movement and a corridor leads to the more intimate spaces that form the VIP area towards the interior of the salon. The subtle, custom lighting features that are embedded in the walls contribute to the futuristic feel of the space.

We consulted with hair stylists in the design of custom furniture that conceals all of the equipment and the embedded lighting is convenient for communication between the stylists and clients. Overall, the furniture selected offsets a warm feeling inside this hair salon straight out of futuristic graphic novels.