您的网页浏览器已过期!
更新您的浏览器,以提高安全性和舒适性,并获得访问本网站的最佳体验。
Your web browser is out-of-date!
Update your browser for more security, comfort and the best experience on this site.
更新浏览器
Update browser
忽略
Ignore
Projects
项目案例
About
关于我们
News
新闻
Contact
联系我们
MENU
EN
中
projects
|
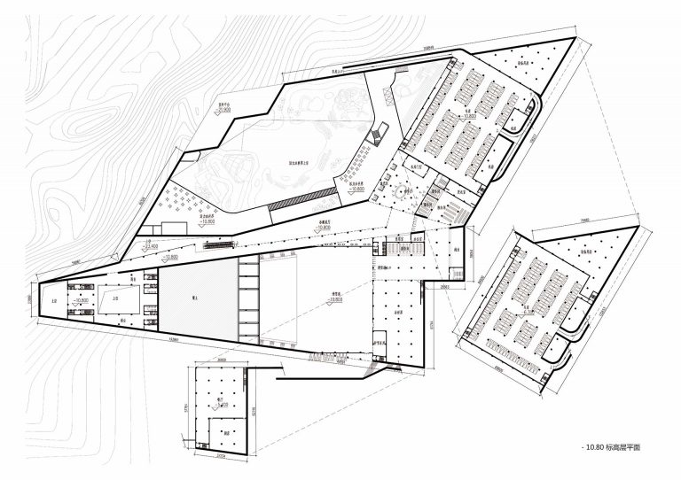
Jungar Banner Skidome and Water Park
Jungar Banner Skidome and Water Park
TYPE
Sports
LOCATION
Ordos,Inner Mongolia,China
AREA
30,000 square meter
DATE
May,2011
Introduction
Render
Diagram
Drawing
Model
NEXT PROJECT
ALIBABA Tower Shenzhen
Discover