您的网页浏览器已过期!

更新您的浏览器,以提高安全性和舒适性,并获得访问本网站的最佳体验。

Your web browser is out-of-date!

Update your browser for more security, comfort and the best experience on this site.
更新浏览器 Update browser 忽略 Ignore
projects
| Qingdao Municipal New Library

Introduction

“Green mountains and sea, island port to find light”

The project is located in Qingdao, Shandong, on the south side of the international cruise port area, only separated from the urban area by a viaduct; China’s port economy has developed rapidly since ancient times, and Qingdao cruise port has good natural conditions, good tourism resources, reliable ship tonnage, modern and advanced service facilities, and has obvious development advantages. She is based on a clear “URBIS” (URBIS), generated by the combination of the shape of the coastline and the peculiarities of the coast – i.e. the activities of water and land – as well as the composition of parks and waterfront buildings. The concept reinterprets the principles of Baroque urban design: a combination of creativity and control, and a strong focus on form.

The design concept is taken from the knowledge ocean peaks of Qingdao International Port built by layers of books, and the rotation and overlap of different angles reflect the openness, dignification and stability of the urban cultural buildings, the large steps of the coast, the viewing platforms looking at the sea on each floor and the sea-viewing garden on the roof, making the building a free urban public space and a knowledge harbor for Qingdao citizens looking for the light of the city.

Renderings

Hand sketches

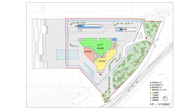
Diagrams

Massing Analysis

Circulation Diagrams

Exploded Diagrams