您的网页浏览器已过期!

更新您的浏览器,以提高安全性和舒适性,并获得访问本网站的最佳体验。

Your web browser is out-of-date!

Update your browser for more security, comfort and the best experience on this site.
更新浏览器 Update browser 忽略 Ignore
projects
| Yongqing International Clothing City

Introduction

Hebei Lanfang Yongqing  International Clothing City Planning

The Yongqing international clothing city, designed by the team of WVA Architects, aims to create a whole industry chain model equipped with high-quality human resource and multi-functional service, perfect infrastructure, and convenient traffic system, thus further promote the regional clothing Industry. The project is situated in the middle of Langfang city, which is located at the centre of Beijing-Tianjin-Hebei (biggest urbanized region in Northern China), and also belongs to the heart of Circum-Bohai Sea Economic Zone. This perfect location offers a great flow of people and goods, thus support the development of the city and additionally acts a “radiation” effect to the north-south axis. More images and architects’ description after the break.

Concept: Weaving green leaf city
The city is arranged as a leaf, consists of one transversal and three lengthwise leaf veins. Financial core area run transversely through the city, connecting the JT and TL Highway; shopping and Expo districts established along the JT Highway set a landmark that attracts clients and expands brand influence; While the logistic harbor and enterprise headquarter install along the south-north axis, forest park is closely aligned with residential, improving the urban livability. Each part weaves a sustainable “green leaf city”.
Detail city space: The land use is mainly considered in various aspects of its location, traffic, water, green, high voltage, etc.

FASHION EXPO

The exploitation of the area is suggested to follow 4 steps:
First of all, establish the shopping district in the joint of the main roads that allows a variety of brands in to make an exclusive shopping center in Beijing suburb and additionally increase public attention. Then, build a series of exposition grounds for various events, in order to improve the popularity. After that, a unique fashion area which absorb independent design brand will settle down as a fashion hub for the social media. At last, a fashion design school can be set up based on previous facilities and resources, therefore cultivate relevant talents.

FINANCIAL CORE

The financial core is positioned along the west-east axis to tie the JT and TL Highway. Beyond that, the transport system in the area including railway, ground traffic, Commercial Street and underground ETT (Evacuated Tube Transportation) realizes the separation of people and vehicles, strengthens the bond with the rest of districts.

RESORT

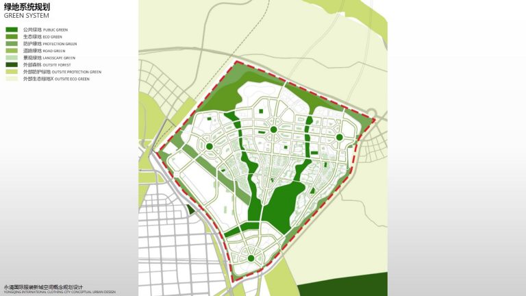
Taking into consideration the existing vegetation, WVA designers extend greenbelt along the river to unite the riparian vegetation. The magnificent green landscape closed to the YONGDING River greatly enhances the residential quality while working as meeting & activities place. Moreover, it can meanwhile attract visitors who want to find a place to picnic.

FOREST PARK & RESIDENTIAL

The planned forest park which is originally a forest farm locates closed to the residential, greatly improves the ecological environment of the residential area and community activity centre.

LOGISTIC HARBOR & ENTERPRISE HEADQUARTER

The logistic harbor and enterprise headquarter unit as a group next to the exit of the JT Highway. With the convenience of the underground ETT system, rich human resources provided from the fashion design schools, picturesque urban waterfront landscape, this area has an overwhelming economic prospect as well.