您的网页浏览器已过期!

更新您的浏览器,以提高安全性和舒适性,并获得访问本网站的最佳体验。

Your web browser is out-of-date!

Update your browser for more security, comfort and the best experience on this site.
更新浏览器 Update browser 忽略 Ignore
projects
| BAHAMAS Mixed-Use COMPLEX

Introduction

info_top

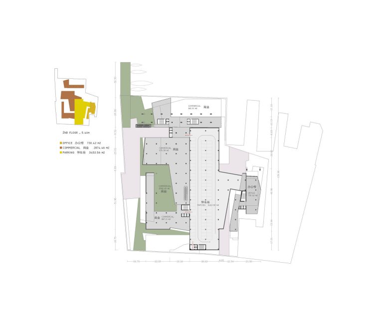
BAHAMAS Mixed-Use COMPLEX

Nassau is the financial, commercial and cultural center of Bahamas. The site is located on the main island next to the city harbor and the town hall.</p> <p>The idea of the project is to join working and leisure inside the same complex.

We create a huge plaza on the south part of the site providing the open street commercial center with a gathering area for tourists. The parking Lott is above ground and divides de office and the commercial, having on the 4th floor a gardened rooftop that acts as the main plaza for the offices and hotel.

The access to the hotel is by a small street in one of the sides, providing privacy to the gests.

All the rooms start on the 5th floor giving a 20m minimum height for views and privacy. The hotel faces the sea.</p> <p>The first 4 floors are dedicated to the common areas and the outdoor swimming pool.