您的网页浏览器已过期!

更新您的浏览器,以提高安全性和舒适性,并获得访问本网站的最佳体验。

Your web browser is out-of-date!

Update your browser for more security, comfort and the best experience on this site.
更新浏览器 Update browser 忽略 Ignore
projects
| Zhongsha Island (Culture and Sport) Facilities Complex

Introduction

The project is located in Zhongsha Island, Fuchunwan New Town, Fuyang District, Hangzhou, 4.4 kilometers away from Fuyang Railway Station and 9.8 kilometers away from Fuyang West Railway Station, with convenient transportation, and is the “cross golden axis” and “cross scenic axis” of the east-west Fuchun River jasper belt and the north-south subway golden corridor city. The green axis of the south bank city extends from the urban area on the south side to the riverside, making it a confluence of distant mountains, near water and cities.

The design creates two scales, facing the river is the scale of the landscape landmark with great opening and closing, and facing the city is the scale of the relatives of the fireworks market. The plan is based on the concept of “flowing mountain realm, white practice floating sky”, taking the “Fuchun Mountain Residence Map” long rolling and undulating realm, condensing the flow of river water and washing momentum. The composition transformation is achieved through the broad and clear layers, aiming to combine the free-flowing tension composition through the Zhejiang landscape beauty of “mountain, water, wood, stone, cloud, sand, and village”. Repaint the grand scenery of the Fuchun River and recreate the ideal life in Jiangnan.

Location analysis

Functional analysis

Structural analysis

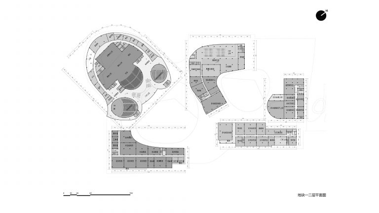
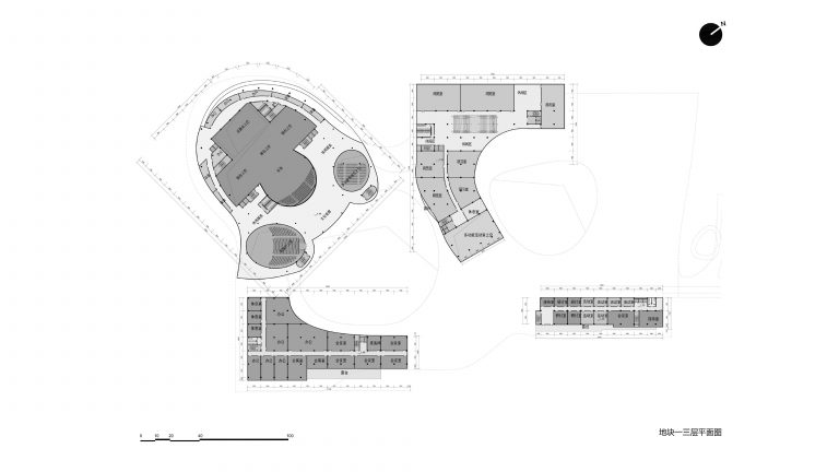
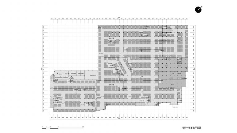
Master floor plan